ИК «Ребус»
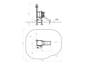
Каркас имеет несущие столбы, выполненные из клееного бруса сечением 100х100мм, по краям имеют скругленную фаску, радиус закругления 10мм. Вдоль бруса изготовлен концентратор напряжения (фрезерованная канавка посередине вдоль бруса). Сверху столб заканчивается пластиковой заглушкой. Снизу столб имеет металлический подпятник из металлической профильной трубы 40х40х1,5мм, металлической пластины 2,5мм. Металлический контур рамы – профильная металлическая труба сечением 20х40х1,5мм. Обвязка пола выполнена из металлической профильной трубы 20х40х1,5мм. Пол – из антискользящего пластика HDPE 15мм с фрезеровкой, крепится к обвязке пола с помощью болтов и гаек Эриксона.
Ограждения интерактивные – из металлической трубы Ø33,5мм, металлической пластины 2,5мм. Многослойный и однослойный пластик HDPE толщиной 15мм. Иллюминатор – монолитный поликарбонат 3мм.
Спуск прямой изготовлен из двух видов пластика HDPE:
- борта спуска изготовлены из тиснённого с двух сторон трехслойного цветного HDPE пластика толщиной 19мм;
- скат спуска изготовлен из тиснённого с двух сторон однослойного цветного пластика HDPE толщиной 15мм. Стяжки бортов спуска изготовлены из круглой трубы Ø30мм из нержавеющей стали.
Опора спуска изготовлена из металлической профильной трубы сечением 40х20 мм и труба металлическая Ø33,5мм.
Защитная перекладина ограждения спуска изготовлена из круглой трубы Ø30мм из нержавеющей стали.
Пандус наклонный. Опора и перемычка пандуса из профильной металлической трубы 50х25х2мм. Пол и уступы пандуса из пластика HDPE толщиной 15мм. Перило пандуса– металлическая труба Ø33,5мм, металлическая пластина 2,5мм. Канат пандуса - канат 6-прядный армированный полипропиленовый Ø16мм, алюминиевая фурнитура. Нержавеющие метизы.
Крыша декорация «Ёлочка» – из трехцветного пластика HDPE толщиной 15мм.
- Самовывоз (бесплатно)
- Доставка (+5%)При сумме заказа менее 5000 руб. - индивидуально
- Сборка и установка (+10%)При сумме заказа менее 5000 руб. - индивидуально
Мы принимаем различные способы оплаты. Безналичным переводом на расчетный счет компании для юридических лиц. С помощью интернет-банкинга на расчетный счет для физических лиц.
ПодробнееГарантийный срок оборудования 12 месяцев со дня подписания накладной. Срок эксплуатации оборудования до 10 лет при условии соблюдения рекомендаций производителя.
Подробнее





